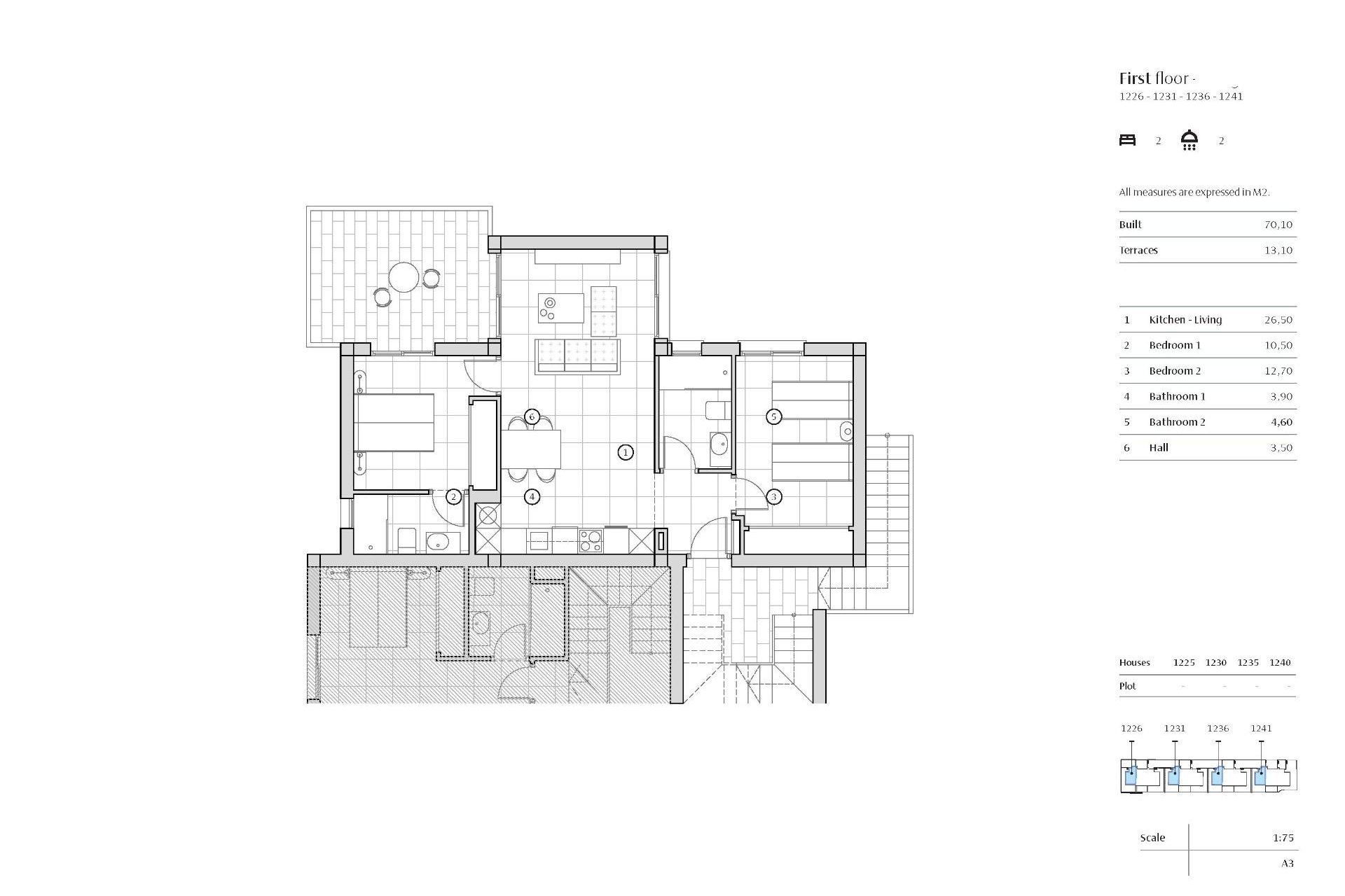
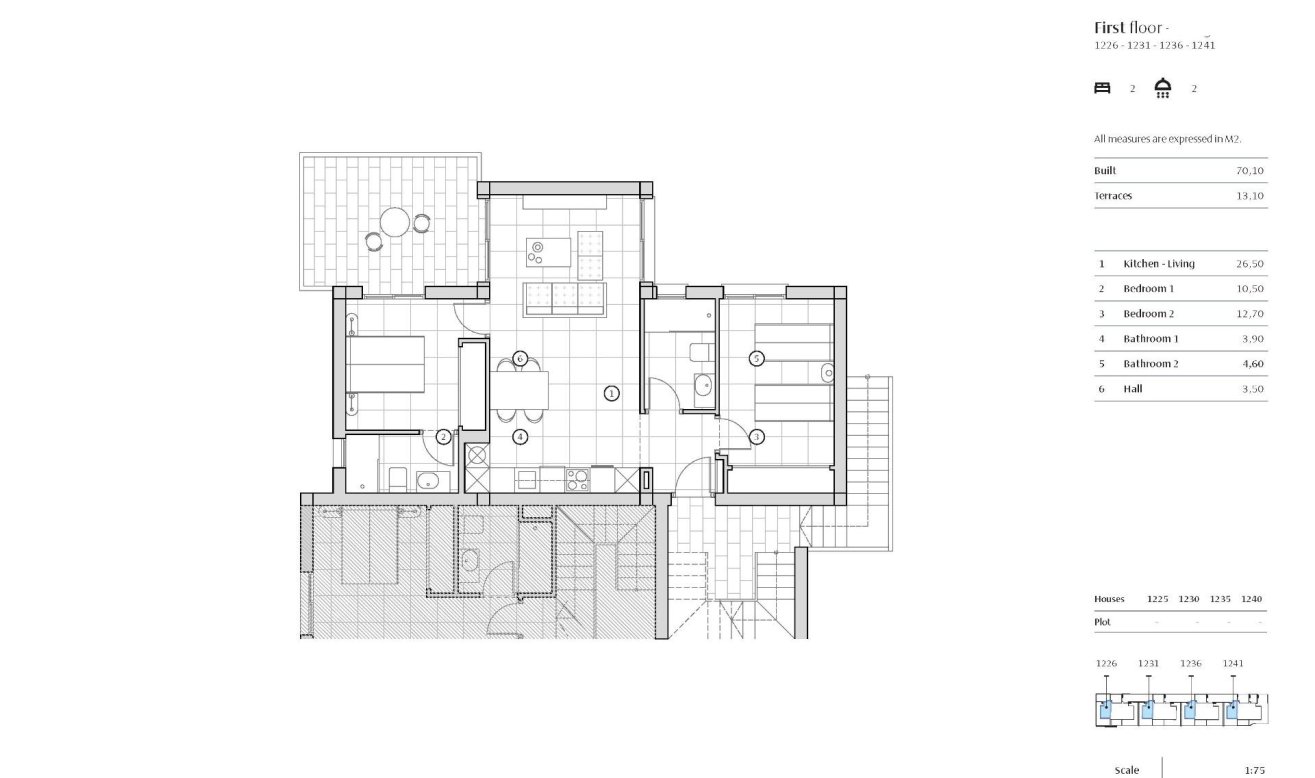
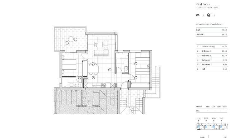
RESIDENCIAL DE OBRA NUEVA EN LA FINCA GOLF Residencial de obra nueva de bungalow apartamentos y adosados en La Finca golf. Modernos bungalows de 2 dormitorios, 2 baños, con cocina abierta integrada con el salón que conecta los dormitorios, baños y terraza. Los bungalows de planta baja disponen de terrazas y jardines, los bungalows de planta alta disponen de terrazas y solariums en la planta superior. Su orientación sur proporciona iluminación natural en cualquier época del año y calefacción natural desde el amanecer hasta la puesta de sol, lo que reduce el consumo de energía. Las propiedades de concepto abierto con ventanas y puertas correderas que permite la ventilación cruzada y deja entrar la luz. Las propiedades están situadas de tal manera, que la luz puede entrar en todas partes, pero al mismo tiempo ofrece algunos rincones frescos y acogedores. La nueva promoción se desarrolla en una increíble parcela donde las viviendas se han ejecutado con un cuidado diseño y amplios espacios para conseguir el máximo confort. Su diseño se centra en la comodidad y el bienestar de sus residentes y combina estilo contemporáneo y carácter mediterráneo, heredando la morfología tradicional con el uso de piedras en fachada y marquesinas. Las cocinas se entregarán completamente amuebladas con un diseño actual de muebles altos y bajos de gran capacidad. Los muebles bajos son en laminado lacado blanco mate y los altos en madera melaminada con textura en las columnas. Perfil tirador semioculto con sistema gola*. Encimera en zona de trabajo y península Quarz Compac Blanco Luna o similar. Puerta principal acorazada con acabado lacado blanco en la hoja interior y textura marrón en la exterior. Mirilla óptica y cerradura de seguridad. Puertas interiores lacadas en blanco, con frente de tres hojas y tiradores rectangulares de acero inoxidable. Armarios empotrados con puertas correderas blancas. Ventanas y puertas correderas en carpintería de aluminio marrón con acabado texturado. Ventanas oscilobatientes en baños, con cristal efecto esmerilado y persianas manuales. Persianas eléctricas y motorizadas, acabadas en aluminio marrón texturado. Todas las persianas están conectadas al sistema domótico y sincronizadas para su cierre y apertura, y se pueden manejar desde la App. Doble acristalamiento especial con control solar y baja emisividad, para aprovechar al máximo la luz natural y ahorrar en costes energéticos. Óptima apariencia estética, color excepcional y mínimo reflejo. Certificación energética clase A Properties ofrece un alto nivel de certificación energética. Esto es posible gracias al aislamiento térmico de techos y paredes, la carpintería de aluminio con doble acristalamiento y la instalación de 5 paneles solares por bloque. Las viviendas están dotadas de las tomas eléctricas y de telecomunicaciones exigidas por el Reglamento Electrotécnico de Baja Tensión. Interfono para la comunicación entre la vivienda y la entrada principal. Incluimos un avanzado sistema domótico para controlar las persianas motorizadas y tres puntos de luz. Mecanismos Legrand serie Valena Next conectables al sistema domótico. Preinstalación de aire acondicionado: central o split según modelo. Sistema de alarma totalmente equipado con un sensor por habitación, panel táctil y sirena. La nueva promoción está situada en La Finca Golf. Está situada junto a la primera línea de golf frente a la calle 11 del campo La Finca Golf, uno de los complejos más emblemáticos del sureste español y refugio habitual de los amantes del golf. Situado a tan sólo 4 minutos de Algorfa, en la Costa Blanca Sur, este complejo con parking cubierto, piscina comunitaria y zonas ajardinadas es el lugar perfecto para aquellos que quieran disfrutar del estilo de vida mediterráneo: proximidad a la playa, al golf y a la montaña, rodeado de tranquilidad, pero con acceso a todo tipo de servicios y zonas de ocio. A pocos minutos de las playas más bellas de la Costa Blanca Sur y de lugares de excepcional belleza como la Laguna Rosa de Torrevieja o las Dunas de Guardamar del Segura. Su proximidad y fácil acceso a la autopista AP-7 y a las principales carreteras nacionales conectan el complejo con numerosas poblaciones de la Costa Blanca como Orihuela, Cartagena, Elche, Murcia y Alicante. Los aeropuertos de Alicante y Murcia se encuentran a menos de 30 minutos en coche con conexiones a las principales capitales europeas.