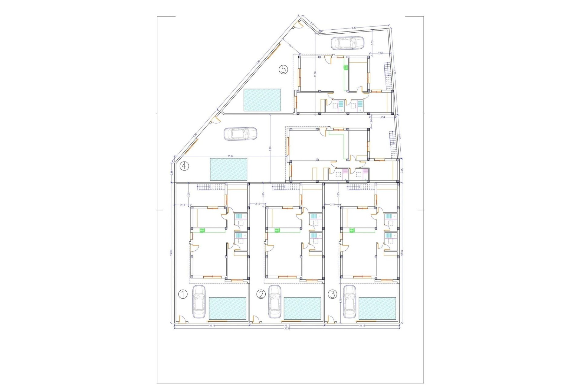
Villas de lujo de una sola planta con piscina privada en Balsicas, Murcia Exclusiva promoción de obra nueva Descubra un exclusivo complejo de 5 villas independientes en Balsicas, cada una diseñada en una sola planta y con piscina privada, amplias terrazas y un espectacular solárium en la azotea. Estas viviendas contemporáneas ofrecen 3 dormitorios y 2 baños, combinando comodidad, privacidad y estilo moderno en una de las zonas más tranquilas y bien comunicadas de Murcia. Diseño moderno y características de alta calidad Estas villas destacan por su distribución diáfana, en la que la cocina totalmente equipada se integra a la perfección con el luminoso salón-comedor. Todas las propiedades incluyen: Cocina totalmente amueblada con electrodomésticos Baños completos con muebles, espejo y mampara de ducha Piscina privada Plaza de aparcamiento en la parcela Iluminación incluida, excepto lámparas decorativas Preinstalación de aire acondicionado por conductos Cocina de verano en el solárium El diseño de una sola planta garantiza el máximo confort, mientras que el amplio solárium permite disfrutar del sol durante todo el año. Una ubicación tranquila y bien comunicada Balsicas es conocida por su ambiente encantador, rodeada de naturaleza, campos de golf y amplias zonas verdes. Es un entorno ideal para aquellos que disfrutan de la vida al aire libre, la tranquilidad y el cálido clima mediterráneo. La localidad ofrece todos los servicios esenciales, restaurantes y opciones de ocio a pocos minutos. Distancias a los principales puntos de interés: Aeropuerto Internacional de Murcia Corvera: aprox. 22 km Aeropuerto de Alicante: aprox. 90 km Campos de golf más cercanos: New Sierra Golf 4 km, La Torre Golf 8 km, Hacienda Riquelme 12 km Playas del Mar Menor: aprox. 18 km Puerto de San Pedro del Pinatar: aprox. 24 km Ideal para vivir o invertir Gracias a su excelente clima, su proximidad al Mar Menor y su fácil acceso a los aeropuertos, Balsicas es un destino atractivo tanto para vivir de forma permanente como para invertir en vacaciones. La zona es especialmente popular entre los amantes del golf y aquellos que buscan un estilo de vida relajado rodeado de naturaleza. Dé el siguiente paso Estas lujosas villas ofrecen todo lo necesario para una cómoda vida mediterránea. Póngase en contacto con nosotros hoy mismo y asegúrese su lugar en esta exclusiva urbanización.