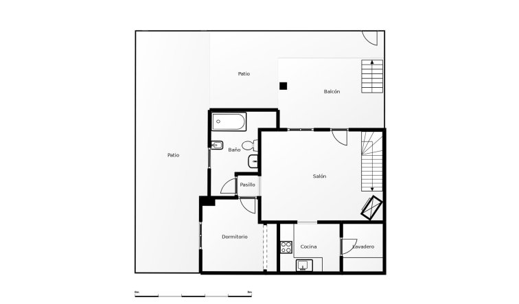
Descubre esta maravillosa propiedad situada en la codiciada zona de Playa Flamenca. Este acogedor quad de dos habitaciones y dos baños ofrece el perfecto equilibrio entre comodidad y estilo, siendo ideal tanto para vivir como para invertir, a pocos minutos del centro comercial La Zenia Boulevard y de las hermosas playas de Orihuela Costa.~~Con una superficie construida de 63 m2 y una impresionante terraza privada de 45 m2 orientada al este, podrás disfrutar del sol durante todo el día. A solo 1500 metros del mar, tendrás fácil acceso a las mejores playas de la región. La vivienda se encuentra completamente amueblada e incluye comodidades modernas como aire acondicionado, un práctico lavadero y un sistema de riego automático en el jardín.~~En la planta baja, encontramos el salón comedor, una cocina totalmente equipada, un lavadero, el dormitorio principal y un baño completo.~~En la primera planta se encuentran el segundo dormitorio con acceso a una terraza privada y el segundo baño.~~Además la propiedad cuenta con piscina comunitaria perfecta para los días soleados! No olvidemos mencionar que podrás aparcar tu coche directamente dentro de la parcela lo que brinda seguridad adicional a tu vehículo.~~La ubicación es inmejorable: cerca encontrarás autobuses que conectan fácilmente con otros puntos importantes; así como centros comerciales donde realizar todas tus compras diarias, y servicios médicos disponibles gracias a hospitales cercanos.~~Si buscas calidad de vida junto al mar o simplemente quieres hacer una inversión segura, pregunta por ella hoy mismo!