Adosado | Obra nueva Finestrat · Alicante

NB-62994
450.000€
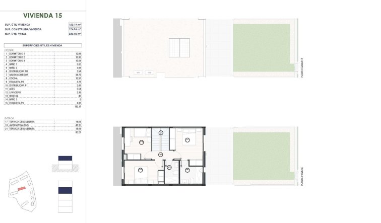
  • Metros 176 m2
  • Parcela 42m2
  • Habitaciones 3
  • Baños 2
  • Piscina

Adosado | Obra nueva Finestrat · Alicante

Modernas casas adosadas de 3 dormitorios en venta en Balcón de Finestrat, Costa Blanca

Características

Habitaciones: 3
Baños: 2
Construidos: 176m2
Parcela: 42m2
Piscina:
Distancia a la playa: 4000 Mts.
Terrace: 37 Msq.
Space
Beach: 4000 Meters
Useable Build Space: 150 Msq.
Laundry Room
Toilet: 1
Communal Pool
Gated
Near Schools
Near Commercial Center
Near Bus Route
Location: Coastal, Urbanisation
Double Bedrooms: 3
Garden
Under-Build / Basement
Number of Parking Spaces: 1
Near Golf / Golf Resort Property

Descripción

Localización

Contacta con nosotros

Responsable del tratamiento: Jean-François Force, Finalidad del tratamiento: Gestión y control de los servicios ofrecidos a través de la página Web de Servicios inmobiliarios, Envío de información a traves de newsletter y otros, Legitimación: Por consentimiento, Destinatarios: No se cederan los datos, salvo para elaborar contabilidad, Derechos de las personas interesadas: Acceder, rectificar y suprimir los datos, solicitar la portabilidad de los mismos, oponerse altratamiento y solicitar la limitación de éste, Procedencia de los datos: El Propio interesado, Información Adicional: Puede consultarse la información adicional y detallada sobre protección de datos Aquí.
WhatsApp