Apartment / flat | New Build Orihuela Costa · Alicante

NB-46586
395.000€

Apartment / flat | New Build Orihuela Costa · Alicante

NEW BUILD RESIDENTIAL AT PLAYA FLAMENCA!!!

Features

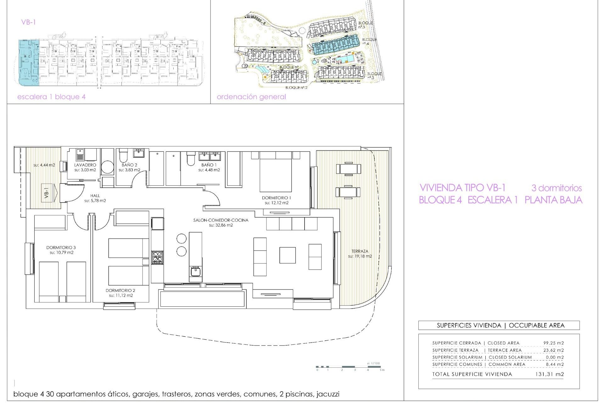
Bedrooms: 3
Bathrooms: 2
Built: 99m2
Pool: Yes
Distance to beach: 500 Mts.
Number of Parking Spaces: 1
Useable Build Space: 90 Msq.
Parking - Space
Beach: 500 Meters
Terrace: 21 Msq.
Storage / Trastero
Elevator/Lift
Communal Pool
Gated
Near Trees
Near Schools
Near Commercial Center
Near Bus Route
Location: Coastal, Urbanisation
Air Conditioning: Pre-Installed
Double Bedrooms: 3
Garden

Description

Location

Contact us

Responsable del tratamiento: Jean-François Force, Finalidad del tratamiento: Gestión y control de los servicios ofrecidos a través de la página Web de Servicios inmobiliarios, Envío de información a traves de newsletter y otros, Legitimación: Por consentimiento, Destinatarios: No se cederan los datos, salvo para elaborar contabilidad, Derechos de las personas interesadas: Acceder, rectificar y suprimir los datos, solicitar la portabilidad de los mismos, oponerse altratamiento y solicitar la limitación de éste, Procedencia de los datos: El Propio interesado, Información Adicional: Puede consultarse la información adicional y detallada sobre protección de datos Aquí.
WhatsApp